Beschrijving
Te huur: Stijlvol appartement in ‘De Haaf’ – exclusief wonen nabij het centrum van Bergen
Wonen in luxe, rust en natuur – en toch op loopafstand van het bruisende dorpshart van Bergen.
Op een van de mooiste locaties van Bergen ligt dit royale, volledig instapklare appartement in het exclusieve appartementencomplex ‘De Haaf’. Dit kleinschalige complex bevindt zich op een prachtig landgoed van ruim twee hectare, ontworpen met oog voor natuur en architectuur. Het is een oase van rust, verscholen in het groen, maar op slechts enkele minuten lopen van winkels, restaurants en cultuur.
Locatie en omgeving
Geniet van het beste van twee werelden: de rust en ruimte van een groene woonomgeving én de nabijheid van het levendige centrum van Bergen. De duinen en het strand van Bergen aan Zee liggen op fietsafstand – perfect voor natuurliefhebbers en wandelaars.
Over het appartement
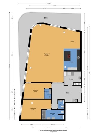
Gelegen op de eerste verdieping biedt dit moderne 3-kamerappartement een hoge mate van comfort en privacy. De woning is volledig voorzien van vloerverwarming en afgewerkt met hoogwaardige materialen. Grote raampartijen zorgen voor veel natuurlijk licht en uitzicht op het omringende groen.
Indeling
• Entree met garderobe, aparte wasruimte en gastentoilet
• Riante woonkamer met open keuken en toegang tot het grote terras
• Moderne keuken met luxe inbouwapparatuur, waaronder inductiekookplaat met geïntegreerde afzuiging, oven, vaatwasser op hoogte, koelkast en vriezer
• Twee ruime slaapkamers, elk met een eigen badkamer
• Hoofdslaapkamer met stijlvolle inbouwkast en luxe badkamer met ligbad, inloopdouche, dubbele wastafel en toilet
• Tweede slaapkamer met eigen badkamer (inloopdouche en wastafel), ook geschikt als werkkamer of hobbyruimte
• Ruim en zonnig terras (48 m²), gelegen op het zuiden/zuidwesten met uitzicht op de parkachtige tuin – ideaal om te ontspannen
Extra's
• Eigen afsluitbare garagebox (27 m²) in de ondergelegen parkeerkelder – ruimte voor auto, fietsen en extra opslag
• Volledig geïsoleerd (energielabel A)
• Hybride systeem voor zowel verwarming als koeling
• Complex met lift, video-intercom en afgesloten toegangspoort
• Gezamenlijke parktuin en veilige, rustige woonomgeving
Bergen is een levendig kunstenaarsdorp met veel voorzieningen zoals restaurants, winkels en sportfaciliteiten. (voetbal, golf, hockey, tennis en manege)
Het dichtstbijzijnde NS Station bevindt zich in Alkmaar (ca. 4 km). Amsterdam en de Luchthaven Schiphol liggen op ca. 40 autominuten verwijderd.
Bergen huisvest daarnaast één van de negen Europese scholen van Europa. Er wordt gedoceerd in het Frans, Engels en Nederlands. Het ook mogelijk in andere talen van de Europese Unie zoals Duits onderwijs te krijgen.